Bâtie en 1969 et entièrement rénovée de A à Z en 2025, cette superbe demeure saura vous charmer avec son design moderne farmhouse. Chaque détail a été pensé pour un confort absolu: plafonds de 9 pi, fenestration abondante, comptoirs de quartz, matériaux haut de gamme et walk-in spacieux. Abri d'auto, remise/garage intégrée et entrée indépendante au sous-sol offrant une possibilité bi-générationnelle. Cour sans voisin arrière -- un véritable coup de coeur!
| Pièces | Niveaux | Dimensions | Revêtements |
|---|---|---|---|
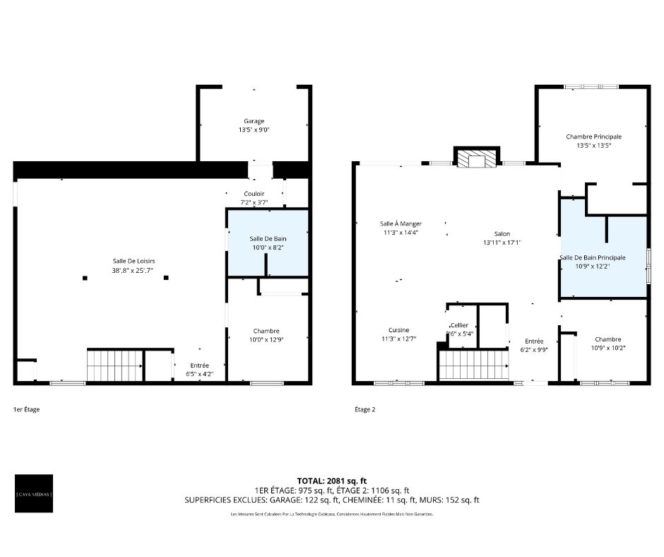
| Hall d'entrée | 1er niveau/RDC | 6,2 x 9,9 pieds | Céramique |
| Chambre à coucher | 1er niveau/RDC | 10,9 x 10,2 pieds | Plancher flottant |
| Salon | 1er niveau/RDC | 13,11 x 17,1 pieds | Plancher flottant |
| Salle à manger | 1er niveau/RDC | 11,3 x 14,4 pieds | Plancher flottant |
| Cuisine | 1er niveau/RDC | 11,3 x 12,7 pieds | Plancher flottant |
| Salle de bains | 1er niveau/RDC | 10,9 x 12,2 pieds | Céramique |
| Chambre à coucher principale | 1er niveau/RDC | 13,5 x 13,5 pieds | Plancher flottant |
| Salle familiale | Sous-sol | 25,7 x 38,8 pieds | Plancher flottant |
| Chambre à coucher | Sous-sol | 10,0 x 12,9 pieds | Plancher flottant |
| Salle de bains | Sous-sol | 10,0 x 8,2 pieds | Plancher flottant |
----DESCRIPTION----
Bâtie en 1969 et entièrement rénovée de A à Z en 2025, cette superbe demeure saura vous charmer avec son design moderne farmhouse. Chaque détail a été pensé pour un confort absolu: plafonds de 9 pi, fenestration abondante, comptoirs de quartz, matériaux haut de gamme et walk-in spacieux. Abri d'auto, remise/garage intégrée et entrée indépendante au sous-sol offrant une possibilité bi-générationnelle. Cour sans voisin arrière -- un véritable coup de coeur!
----CARACTÉRISTIQUES NOTABLES----
Intérieur:
--Entrée spacieuse avec beaucoup de rangement
--Aire ouverte lumineuse avec fenestration abondante partout dans la maison
--Porte-patio de 8 pieds
--Plafonds de 9 pieds
--Salle de bain au rez-de-chaussée avec douche vitrée, bain autoportant et lavabo double, meubles sur mesure en ébénisterie, comptoirs de quartz avec éviers sous plan
--Cuisine avec grand îlot, comptoirs en quartz et armoires de style shaker et garde-manger walk-in
--Salon avec foyer électrique et beau manteau de foyer en pierre
--3 chambres à coucher, dont la principale avec garde-robe walk-in
--Salle de bain complète au sous-sol
Extérieur:
--Allée pouvant accueillir plusieurs véhicules
--Abri d'auto
--Cour sans voisin arrière avec arbres matures
--Garage/Remise attenant à la propriété (en rez-de-jardin) avec accès intérieur et extérieur
--Grand balcon arrière en composite (très durable et sans entretien)
----RÉNOVATIONS EFFECTUÉES----
*Voir les détails dans la déclaration du vendeur et la liste des rénovations
Près de 400 000$ investis
Tout refait à neuf: électricité, plomberie, drains de fondations, terrassement, revêtements de plancher, agrandissement de la maison, remise/garage intégré, toiture, fenêtres et beaucoup plus!
*L'acheteur s'engage à vérifier auprès des autorités compétentes pour tout projet qu'il désire effectuer sur la propriété.
Dimensions
11.73 M X 11.67 M
Année de construction
2025
Mode de chauffage
Foyer électrique, Thermopompe murale
Mode de chauffage
Plinthes électriques
Approvisionnement en eau
Municipalité
Énergie pour le chauffage
Électricité
Fenêtres
PVC
Fondation
Béton coulé
Revêtements
Pierre
Revêtements
Vinyle
Sous-sol
6 pieds et plus
Sous-sol
Totalement aménagé
Toiture
Bardeaux d'asphalte
Superficie du terrain
557.4 MC
Particularités
Aucun voisin à l'arrière
Particularités
Terrain boisé : feuillus
Système d'égouts
Municipal
Zonage
Résidentiel
Allée
Asphalte
Aménagement du terrain
Terrain/cour bordé de haies
Armoires
Polymère
Armoires
Mélamine
Équipement disponible
Échangeur d'air
Équipement disponible
Thermopompe murale
Proximité
CHUS Fleurimont, Galerie 4 saisons
Proximité
Autoroute/Voie rapide
Proximité
Cegep
Proximité
Garderie/CPE
Proximité
Hôpital
Proximité
Parc-espace vert
Proximité
Piste cyclable
Proximité
École primaire
Proximité
École secondaire
Proximité
Transport en commun
Proximité
Université
Salle de bains/salle d'eau
Douche indépendante
Services disponibles
Détecteur d'incendie
Stationnement
À l'abri
Stationnement
Extérieur
Type de fenêtre
Manivelle
Topographie
En pente (fond du terrain)
Topographie
Plat
Inclusions:
Échangeur d'air, balayeuse centrale et accessoires, thermopompe murale (18 000 BTU)Exclusions:
Biens et meubles des vendeurs.| Taxes et coûts | |
|---|---|
| Taxes municipales (2025) | 2653$ |
| Taxes scolaires (2025) | 174$ |
| TOTAL | 2827$ |
| Frais mensuels | |
|---|---|
| Coût d'énergie | 0$ |
| Frais commun/Loyer de base | 0$ |
| TOTAL | 0$ |
| Évaluation (2023) | |
|---|---|
| Bâtiment | 186600$ |
| Terrain | 134600$ |
| TOTAL | 321200$ |
m'intéresse
Alexandre Côté
Stéphanie Lamontagne
Bâtie en 1969 et entièrement rénovée de A à Z en 2025, cette superbe demeure saura vous charmer avec son design moderne farmhouse. Chaque détail a été pensé pour un confort absolu: plafonds de 9 pi, fenestration abondante, comptoirs de quartz, matériaux haut de gamme et walk-in spacieux. Abri d'auto, remise/garage intégrée et entrée indépendante au sous-sol offrant une possibilité bi-générationnelle. Cour sans voisin arrière -- un véritable coup de coeur!
| Pièces | Niveaux | Dimensions | Revêtements |
|---|---|---|---|
| Hall d'entrée | 1er niveau/RDC | 6,2 x 9,9 pieds | Céramique |
| Chambre à coucher | 1er niveau/RDC | 10,9 x 10,2 pieds | Plancher flottant |
| Salon | 1er niveau/RDC | 13,11 x 17,1 pieds | Plancher flottant |
| Salle à manger | 1er niveau/RDC | 11,3 x 14,4 pieds | Plancher flottant |
| Cuisine | 1er niveau/RDC | 11,3 x 12,7 pieds | Plancher flottant |
| Salle de bains | 1er niveau/RDC | 10,9 x 12,2 pieds | Céramique |
| Chambre à coucher principale | 1er niveau/RDC | 13,5 x 13,5 pieds | Plancher flottant |
| Salle familiale | Sous-sol | 25,7 x 38,8 pieds | Plancher flottant |
| Chambre à coucher | Sous-sol | 10,0 x 12,9 pieds | Plancher flottant |
| Salle de bains | Sous-sol | 10,0 x 8,2 pieds | Plancher flottant |
----DESCRIPTION----
Bâtie en 1969 et entièrement rénovée de A à Z en 2025, cette superbe demeure saura vous charmer avec son design moderne farmhouse. Chaque détail a été pensé pour un confort absolu: plafonds de 9 pi, fenestration abondante, comptoirs de quartz, matériaux haut de gamme et walk-in spacieux. Abri d'auto, remise/garage intégrée et entrée indépendante au sous-sol offrant une possibilité bi-générationnelle. Cour sans voisin arrière -- un véritable coup de coeur!
----CARACTÉRISTIQUES NOTABLES----
Intérieur:
--Entrée spacieuse avec beaucoup de rangement
--Aire ouverte lumineuse avec fenestration abondante partout dans la maison
--Porte-patio de 8 pieds
--Plafonds de 9 pieds
--Salle de bain au rez-de-chaussée avec douche vitrée, bain autoportant et lavabo double, meubles sur mesure en ébénisterie, comptoirs de quartz avec éviers sous plan
--Cuisine avec grand îlot, comptoirs en quartz et armoires de style shaker et garde-manger walk-in
--Salon avec foyer électrique et beau manteau de foyer en pierre
--3 chambres à coucher, dont la principale avec garde-robe walk-in
--Salle de bain complète au sous-sol
Extérieur:
--Allée pouvant accueillir plusieurs véhicules
--Abri d'auto
--Cour sans voisin arrière avec arbres matures
--Garage/Remise attenant à la propriété (en rez-de-jardin) avec accès intérieur et extérieur
--Grand balcon arrière en composite (très durable et sans entretien)
----RÉNOVATIONS EFFECTUÉES----
*Voir les détails dans la déclaration du vendeur et la liste des rénovations
Près de 400 000$ investis
Tout refait à neuf: électricité, plomberie, drains de fondations, terrassement, revêtements de plancher, agrandissement de la maison, remise/garage intégré, toiture, fenêtres et beaucoup plus!
*L'acheteur s'engage à vérifier auprès des autorités compétentes pour tout projet qu'il désire effectuer sur la propriété.
Mode de chauffage
Foyer électrique, Thermopompe murale
Mode de chauffage
Plinthes électriques
Approvisionnement en eau
Municipalité
Énergie pour le chauffage
Électricité
Fenêtres
PVC
Fondation
Béton coulé
Revêtements
Pierre
Revêtements
Vinyle
Sous-sol
6 pieds et plus
Sous-sol
Totalement aménagé
Toiture
Bardeaux d'asphalte
Particularités
Aucun voisin à l'arrière
Particularités
Terrain boisé : feuillus
Système d'égouts
Municipal
Zonage
Résidentiel
Allée
Asphalte
Aménagement du terrain
Terrain/cour bordé de haies
Armoires
Polymère
Armoires
Mélamine
Équipement disponible
Échangeur d'air
Équipement disponible
Thermopompe murale
Proximité
CHUS Fleurimont, Galerie 4 saisons
Proximité
Autoroute/Voie rapide
Proximité
Cegep
Proximité
Garderie/CPE
Proximité
Hôpital
Proximité
Parc-espace vert
Proximité
Piste cyclable
Proximité
École primaire
Proximité
École secondaire
Proximité
Transport en commun
Proximité
Université
Salle de bains/salle d'eau
Douche indépendante
Services disponibles
Détecteur d'incendie
Stationnement
À l'abri
Stationnement
Extérieur
Type de fenêtre
Manivelle
Topographie
En pente (fond du terrain)
Topographie
Plat
Inclusions:
Échangeur d'air, balayeuse centrale et accessoires, thermopompe murale (18 000 BTU)Exclusions:
Biens et meubles des vendeurs.| Taxes et coûts | |
|---|---|
| Taxes municipales (2025) | 2653$ |
| Taxes scolaires (2025) | 174$ |
| TOTAL | 2827$ |
| Frais mensuels | |
|---|---|
| Coût d'énergie | 0$ |
| Frais commun/Loyer de base | 0$ |
| TOTAL | 0$ |
| Évaluation (2023) | |
|---|---|
| Bâtiment | 186600$ |
| Terrain | 134600$ |
| TOTAL | 321200$ |













































